fan image
Model
CA IL 160
Code
16255

CA IL 160

• Casing and motor-support made of galvanized sheet steel; lined internally with PE sound-proof panel (thickness 10 mm).
• Circular spigots for connection to standard tubes, equipped with double lip rubber seal for perfect air tightness.
• External rotor AC motorfan, with shaft turning in ball bearings, coupled to a backward curved centrifugal impeller.
• Galvanized steel sheet brackets, directly coupled to casing.
• Electric connection box accomodating capacitors, molded with shock-proof plastic resin resistant against aggressive agents, integrating cable cages and cable glands to ensure high protection (IP55) against dust and water.
• 3 alternative installation: wall, ceiling and false-ceiling.
• Easy maintenance: motor is directly fixed to the cover, in turn hinged to the casing, allowing easy external rotation and motorfan direct access.
• Protection against dust and water: IP44.
• Electric insulation class: I (grounding is required).

Fan

Max flow
460 m³/h
CA IL 160
Loading...
Design point
Loading...
Service point
Loading...
Alternative point

CA IL 160

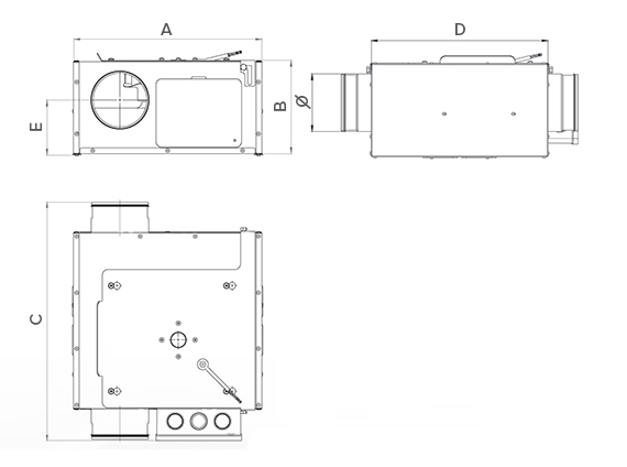
Dimensions scheme
A B C D E
390 198 467 362 98

CA IL 160

Model
IREM-D (speed controller)
Code
12867
Information
Electronic speed controller
for installation in Standard DIN box. Maximum load: 1.0 A.
Model
C 1.5 (electronic speed controller)
Code
12966
Information
Controller
 
C 5 0,5 speed controller ON/OFF (5 speeds).
.
C 1.5 Electronic speed controller. Maximum load: 1.5 A
C 2.5 Electronic speed controller. Maximum load: 2.5 A
Model
GR 160
Code
21180
Information
PROTECTION GRILLE
Protection metal grill, directly coupled to the product,
Model
FS 160
Code
21185
Information
FLEXIBLE SLEEVE

Flexible sleeve complete with hose clamps for pipe fixing

CA IL 160